
(一)产品介绍
1、HRV-01、HRV-02半容积式换热器是在对具有国际先进水平的国外同类型热交换器做了很大的结构工艺改进的基础上推出的新产品,是本厂从专业建筑设计院引进的新型专业产品,其热力性能参数经测试,均超过国外同型设备,是本厂与RV-03、RV-04产品推出的两大新型热交换器之一,是供热及暖通给排水的理想设备。
2、其性能特点有:
①换热部分为改进的快速换热器,传热系数较高,换热量大,相同容积的该产品的换热量分别相当于传统换热器的5-8倍;
②其中半容积式的特点,使得贮水部分贮水有10-20分钟的热水量,被加热水的水头损失<0.2米,因此它在设有一般自动温控阀的条件下仍能保持供水水压、水温平稳、安全、节水、用水舒适的特点;
③加热部分为快速式,罐内贮水全部为热水、无滞水、冷水区、容积利用率达100%;
④产品在用水量极小或不用时,可借助热水管网循环泵的工作维持罐内水温,换热部分总处于被加热水流动状态,使换热充分、节能。汽水换热时凝水出水温度低于80℃;
⑤罐形小,重量轻、换热束可以沿水平方向抽出,方便维修。
(二)设计使用说明
1、HRV-01/02 半容积式换热器系列适用于一般工业及民用建筑的热水供应系统,热媒为蒸汽或高温水,可按不同热源选用。
2、被加热水出口温度不得高于75℃,实际使用时,为延缓结垢,被加热水温度宜控制在50-60℃之间。为使运行更安全,热媒出水管上须装设疏水阀。
3、材质:壳体可按用户要求,选择不锈钢材料(SUS304、SUS316L、SUS2205)或碳钢内衬SUS304、碳钢内衬SUS316L、碳钢内衬SUS444、碳钢内衬铜;换热U型管材料分紫铜管、SUS304不锈钢管、SUS316L不锈钢管。
4、HRV-01产品采用钢制鞍式支座,一般做高H=300mm的混凝土支墩;HRV-02采用支承式支座,一般做高H=200mm的混凝土支墩。
5、换热器应安装安全装置。装设安全阀时,安全阀开启压力应不超过设计压力(订购安全阀时应申明),安全阀的安装和使用应符合国家相关规定。
(三)编号说明

(四)主要技术参数表
HRV-01卧式半容积式换热器主要技术参数

HRV-02立式半容积式换热器主要技术参数

(五)尺寸表
HRV-01卧式半容积式换热器尺寸表

HRV-02立式半容积式换热器尺寸表

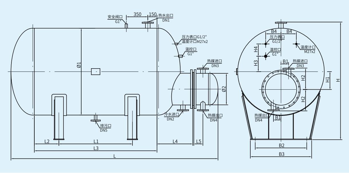
(六)外形尺寸图
HRV-01卧式半容积式换热器外形尺寸图

HRV-02立式半容积式换热器外形尺寸图

HRV-01卧式半容积式换热器管路接管示意图

HRV-02立式半容积式换热器管路接管示意图

设备材料表

注:
1、热媒为热媒水时,不得设疏水器。
2、蒸汽为热媒时,热媒出水管管径应比热媒进口小2-3号。
3、温控阀由使用方与生产企业商定。
4、配管及配管上的阀门、疏水器、除污器、压力表、温度计等由设计定,使用单位自备。
产品实物图

